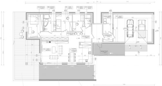
Plan
Prizemlje – 196,20 m²
- garaža 50 m²
 - hodnik 13,66 m²
 - kotlovnica 8,22 m²
 - kupatilo 3,63 m²
 - soba 8,83 m²
 - ulaz 8,50 m²
 - soba 12,81 m²
 - kupatilo 9,60 m²
 - hodnik 18 m²
 - soba 15,52 m²
 - kuhinja + trpezarija 17,40 m²
 - dnevni boravak 26,50 m²
 - hodnik 3,53 m²
 
Pogledajte galeriju:
    








