Plan
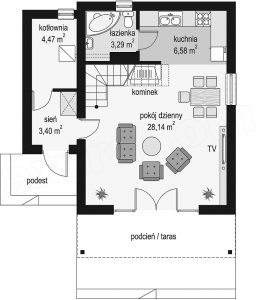
Prizemlje
- ulaz 3,4 m²
- kotlovnica 4,47 m²
- dnevni boravak 28,14 m²
- kuhinja 6,58 m²
- kupatilo 3,29 m²
Ukupno: 45,88 m²
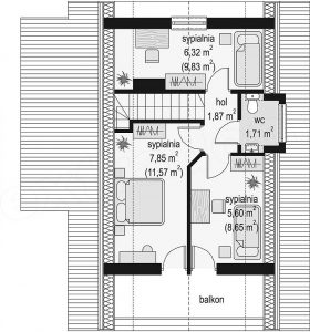
Potkrovlje
- soba 6,32 m² (9,83 m²)
- hodnik 1,87 m²
- kupatilo 1,71 m²
- soba 5,6 m² (8,65 m²)
- soba 7,85 m² (11,57 m²)
Ukupno: 23,35 m² (33,63 m²)
Cijena
- oko 30 000 EUR
Pogledajte galeriju:








