Plan
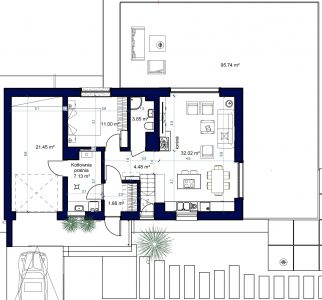
Prizemlje – 80,81 m²
- ulaz 1,88 m²
- hodnik 4,48 m²
- pokój dzienny + kuchnia 32,02 m²
- kupatilo 3,85 m²
- soba 11 m²
- kotlovnica 7,13 m²
- garaža 20,45 m²
- terasa (95,74 m²)
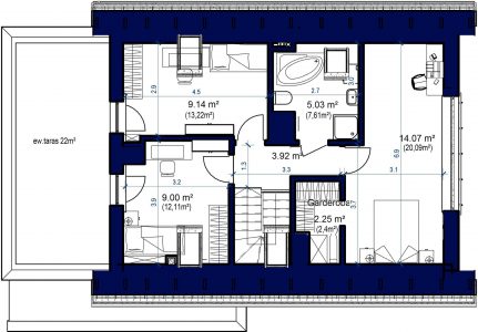
Potkrovlje – 43,41 m²
- hodnik 3,92 m²
- soba 9,14 m² (13,22 m²)
- kupatilo 5,03 m² (7,61 m²)
- soba 14,07 m² (20,09 m²)
- garderoba 2,25 m² (2,40 m²)
- soba 9 m² (12,11 m²)
Pogledajte galeriju:








