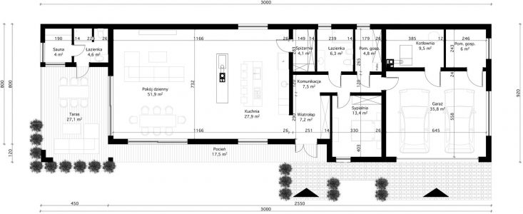
Plan
Prizemlje – 183,50 m²
- ulaz 7,20 m²
- hodnik 7,50 m²
- kuhinja 27,90 m²
- dnevni boravak + trpezarija 51,90 m²
- ostava 4,10 m²
- kupatilo 6,80 m²
- pomoćna prostorija 4,80 m²
- soba 13,40 m²
- garaža 35,80 m²
- kotlovnica 9,50 m²
- pomoćna prostorija 6 m²
- kupatilo 4,60 m²
- sauna 4 m²
- terasa (27,10 m²)
Potkrovlje – 109 m²
- hodnik 16,60 m²
- soba 18,90 m²
- kupatilo 10,70 m²
- garderoba 9,80 m²
- soba 16,10 m²
- soba 16,10 m²
- soba 12,30 m²
- kupatilo 8,50 m²
- terasa (25,70 m²)
- terasa (52,70 m²)
Pogledajte galeriju:














