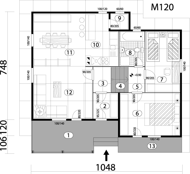
Tehničke karakteristike
- Kvadratura(bruto) : 98 m2
- Kvadratura(neto) : 88 m2
- Broj soba : 2
Pregled prostorija
- Terasa 12.57 m2
- Vetrobran 2.89 m2
- Predsoblje 1.95 m2
- Spavaća soba 12.18 m2
- Dečija soba 10.08 m2
- Kupatilo 4.08 m2
- Ostava 1.32 m2
- Kuhinja 6.96 m2
- Trpezarija 12.32 m2
- Dnevna soba 14.71 m2
- Balkon 4.64 m2
- Stepenište 2.04 m2
- Predsoblje 1.95 m2

