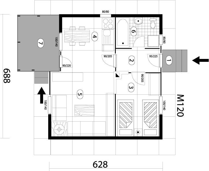
Tip 44b je model iz kategorije manjih površina, do 50m2. Sastoji se iz prostrane dnevne sobe, prostrane spavaće sobe, kupatila, predsoblja i terase.
- Bruto površina: 50.38 m2
- Neto površina: 45.46 m2
- Broj etaža: 1
- Broj soba: 3
| 1 | Ulaz | 2.02 m2 |
| 2 | Predsoblje | 2.40 m2 |
| 3 | Spavaća soba | 8.26 m2 |
| 4 | Kuhinja | 8.70 m2 |
| 5 | Dnevna soba | 12.60 m2 |
| 6 | Kupatilo | 4.08 m2 |
| 7 | Terasa | 7.40 m2 |
Izvor: montaznekucedomil.com

