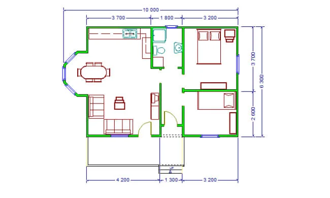
Moderna montažna kuća Lira 68 je projektovani model kuće za sajam 2003.godine u Beogradu i izgrađena je u najvećem broju primeraka. Prostorna organizacija sadrži dve spavaće sobe, kupatilo, dnevni boravak koji je spojen sa trpezarijom i kuhinjom . Prostor za trpezarijski sto rezervisan je u erkeru koji dodaje svetlost celom dnevnom delu preko tri identična prozora. Četrorovodni izgled krova se dopunjava natrivanjem izdvojene terase i erkera i daje dinamičnu formu celokupnog eksterijera.
Cena: siva faza 24,170 €
Izvor: montaznekuce.com




