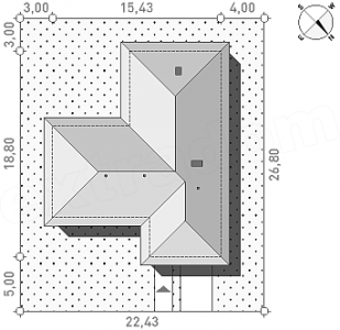
Plan
Prizemlje
- ulaz 4,1 m²
- hodnik 7 m²
- kupatilo 5,6 m²
- soba 12,5 m²
- soba 16 m²
- soba 13,5 m²
- dnevni boravak + trpezarija 38,6 m²
- hodnik 12,3 m²
- kuhinja 9,7 m²
- ostava 2,1 m²
- pomoćna prostorija 2 m²
- kotlovnica 6,2 m²
- garaža 20,8 m²
Ukupno: 150,4 m²
Cijena
- oko 75 000 EUR
Pogledajte galeriju:











