Iskoristiva površina:
- 269.44 m²
Plan
Prizemlje
- Ulaz 4.24 m²
- Hodnik 24.68 m²
- Garderoba 3.14 m²
- Ostava 2.74 m²
- Kuhinja 19,61 m²
- Trpezarija 19.98 m²
- Dnevni boravak 54,49 m²
- Soba 14.35 m²
- Kupatilo 7.59 m²
- Kotlovnica + pomoćna prostorija 9.6 m²
- Garaža 42 m²
- Pomoćna prostorija 15.4 m²
Ukupno: 217.82 m²
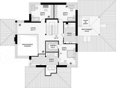
Sprat
- Hodnik 8.51 m²
- Soba 16.67 m²
- Soba 16,54 m²
- Kupatilo 11,37 m²
- Soba 17.66 m²
- Garderoba 6.22 m²
- Kupatilo 18.18 m²
- Međusprat 23,47 m²
- Tavan 16,16 m²
Ukupno: 134.78 m²
Pogledajte galeriju:














