Plan
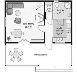
Prizemlje
- Dnevni boravak 25,1 m²
- Pomoćna prostorija 2,37 m²
- Kupatilo 4,7 m²
- Kuhinja 9,94 m²
Ukupno: 42,11 m²
Potkrovlje
- Hodnik 1,62 m² (3 m²)
- Soba 11,52 m² (18,24 m²)
- Soba 10,18 m² (16,65 m²)
Ukupno: 23,32 m² (37,89 m²)
Cijena
- oko 24 hiljade evra
Pogledajte galeriju:









