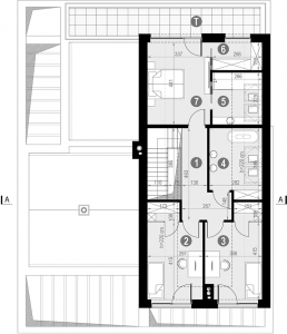
Plan
Prizemlje – 133,85 m²
- ulaz 4,52 m²
- hodnik + stepenice 15,20 m² (17,02 m²)
- kotlovnica + pomoćna prostorija 5 m²
- garderoba 5,38 m²
- soba 8,97 m²
- kupatilo 4,42 m²
- ostava 3,07 m²
- kuhinja 14,11 m²
- trpezarija 14,11 m²
- dnevni boravak 20,74 m²
- garaža 38,33 m²
- terasa (121,71 m²)
Potkrovlje – 66,66 m²
- hodnik + stepenice 12,94 m²
- soba 11,73 m² (14,19 m²)
- soba 11,48 m² (13,94 m²)
- kupatilo 8,33 m² (10,14 m²)
- kupatilo 6,11 m² (7,42 m²)
- garderoba 3,28 m² (3,99 m²)
- soba 12,79 m² (14,86 m²)
- terasa (16,03 m²)
Pogledajte galeriju:






















































