Plan
Prizemlje – 62,60 m²
- ulaz 3,30 m²
- kuhinja 8 m²
- ostava 1,60 m²
- dnevni boravak 22,80 m²
- hodnik 6,30 m²
- soba 9,50 m²
- kupatilo 3,70 m²
- kotlovnica 7,40 m²
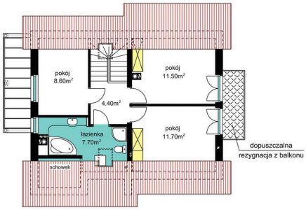
Potkrovlje – 43,90 m²
- hodnik 4,40 m²
- soba 8,60 m²
- soba 11,50 m²
- soba 11,70 m²
- kupatilo 7,70 m²
Pogledajte galeriju:





