Plan
Podrum
- hodnik + stepenice 5,6 m²
- pomoćna prostorija 3,1 m²
- kotlovnica 8,6 m²
Ukupno: 17,3 m²
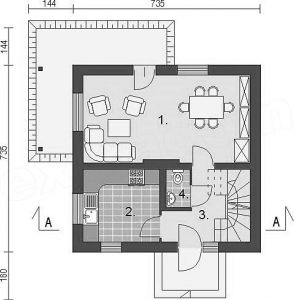
Prizemlje
- dnevni boravak 22,4 m²
- kuhinja 8,6 m²
- wc 1,4 m²
- hodnik + stepenice 8 m²
Ukupno: 40,4 m²
Potkrovlje
- soba 15,2 m²
- soba 5,6 m²
- kupatilo 3,2 m²
- hodnik 2 m²
Ukupno: 26 m²
Cijena
- oko 40 000 EUR
Pogledajte galeriju:












