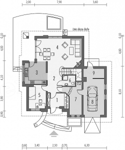
Plan
Iskoristiva površina
- 139,84 m²
Prizemlje
- Ulaz 7 m²
- Hodnik 12,62 m²
- Kuhinja 11,62 m²
- Dnevni boravak + trpezarija 31,28 m²
- Soba 10,15 m²
- Kupatilo 3,29 m²
- Kotlovnica 10,45 m²
- Garaža 18,34 m²
- Pomoćna prostorija 4,78 m²
Ukupno: 109,53 m²
Potkrovlje
- Hodnik 9,27 m²
- Soba 14,19 m²
- Garderoba 12,43 m²
- Soba 13,91 m²
- Soba 7,97 m²
- Kupatilo 6,11 m²
- Tavan 8,04 m²
Ukupno: 71,92 m²
Cijena
- oko 72 hiljade evra
Pogledajte galeriju:

















