Plan
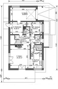
Prizemlje
- ulaz 3,67 m²
- hodnik 8,78 m² (8,94 m²)
- dnevni boravak 27,24 m²
- kuhinja 13,5 m²
- ostava 1,56 m²
- soba 9,46 m²
- kupatilo 2,37 m²
- kotlovnica 10,26 m²
- garaža 20,89 m²
Ukupno: 97,73 m² (97,89 m²)
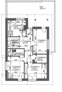
Potkrovlje
- hodnik 12,21 m²
- soba 13,71 m² (14,06 m²)
- garderoba 2,96 m² (3,94 m²)
- stepenice 5,15 m²
- kupatilo 8,89 m² (10,73 m²)
- soba 13,18 m²
- garderoba 3,27 m² (4,24 m²)
- soba 11,36 m² (13,1 m²)
Ukupno: 70,73 m² (76,61 m²)
Cijena
- oko 85 000 EUR
Pogledajte galeriju:








