Plan
Prizemlje – 173,05 m²
- ulaz 4,65 m²
- garderoba 2,04 m²
- ostava 1,90 m²
- kuhinja 16,67 m²
- dnevni boravak 40,76 m²
- hodnik 20,91 m²
- soba + garderoba 19,44 m²
- kupatilo 7,90 m²
- soba 11,96 m²
- wc 1,77 m²
- pralnia 3,19 m²
- kotlovnica 7,06 m²
- garaža 34,80 m²
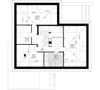
Potkrovlje – 78,98 m²
- hodnik 15,86 m²
- soba 20,38 m² (41,46 m²)
- kupatilo 6,89 m² (12,41 m²)
- tavan 12,06 m² (24,35 m²)
- garderoba 7,09 m² (12,51 m²)
- soba 16,70 m² (36,08 m²)
Pogledajte galeriju:
















