Plan
Parter – 87,70 m²
- ulaz 3,30 m²
- kuhinja 9,50 m²
- ostava 1,90 m²
- dnevni boravak + trpezarija 25,20 m²
- hodnik 6,30 m²
- soba 9,50 m²
- kupatilo 3,70 m²
- kotlovnica 5,20 m²
- garaža 18,40 m²
- pomoćna prostorija 4,70 m²
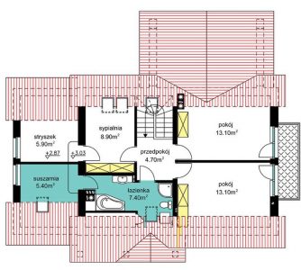
Poddasze – 58,50 m²
- hodnik 4,70 m²
- soba 13,10 m²
- soba 13,10 m²
- kupatilo 7,40 m²
- soba 8,90 m²
- tavan 5,90 m²
- vešeraj 5,40 m²
Pogledajte galeriju:






