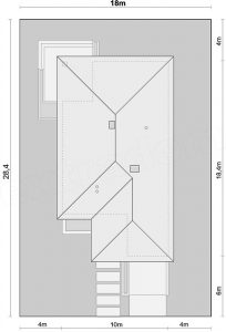
Plan
Prizemlje
- ulaz 2,14 m²
- hodnik 6,74 m²
- dnevni boravak + trpezarija 30,04 m²
- kuhinja 7,36 m²
- hodnik 8,64 m²
- soba 10,92 m²
- soba 10,92 m²
- soba 8,51 m²
- kupatilo 7,03 m²
- garaža + kotlovnica 5,51 m²
- wc 2,05 m²
- garaža 18,6 m²
Ukupno: 118,46 m²
Cijena
- oko 60 000 EUR
Pogledajte galeriju:







