Plan
Prizemlje
- ulaz 5,67 m²
- kotlovnica 6,16 m²
- garaža 34,22 m²
- garderoba 1,67 m²
- hodnik 12,51 m²
- dnevni boravak + trpezarija 33,64 m²
- kuhinja 12,33 m²
- ostava 1,2 m²
- soba 13,1 m²
- wc 1,92 m²
- pomoćna prostorija 1,26 m²
- soba 13,1 m²
- kupatilo 7,91 m²
- soba 15,33 m²
- garderoba 3,16 m²
Ukupno: 163,18 m²
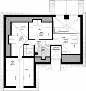
Potkrovlje
- hodnik 4,86 m²
- mezanin 11,44 m² (20,77 m²)
- kupatilo 4,74 m² (7,86 m²)
- soba 12,91 m² (18,24 m²)
- soba 13,4 m² (23,43 m²)
- tavan 8,73 m² (34,22 m²)
Ukupno: 56,08 m² (109,38 m²)
Cijena
- oko 100 000 EUR
Pogledajte galeriju:








