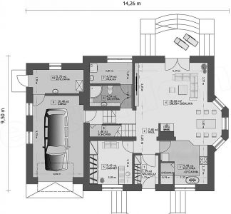
Plan
Prizemlje
- ulaz 3,59 m²
- hodnik 7,48 m²
- kuhinja + ostava 9,98 m²
- dnevni boravak + trpezarija 28,6 m²
- soba 9,45 m²
- kupatilo 4,54 m²
- pomoćna prostorija 4,54 m²
- pomoćna prostorija 1,46 m²
- garaža 20,48 m²
- kotlovnica 6,12 m²
Ukupno: 96,24 m²
Potkrovlje
- hodnik 6,66 m²
- soba 13,17 m² (15,74 m²)
- soba 12,03 m² (14,6 m²)
- soba 11,67 m² (15,81 m²)
- kupatilo 8,34 m² (9,99 m²)
- tavan 23 m² (26,15 m²)
Ukupno: 74,87 m² (88,95 m²)
Cijena
- oko 80 000 EUR
Pogledajte galeriju:








