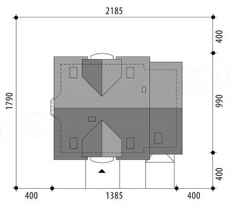
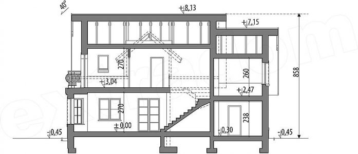
Plan
Prizemlje
- ulaz 4,3 m²
- hodnik 6,8 m²
- kuhinja 9,8 m²
- dnevni boravak + trpezarija 33,2 m²
- soba 10,1 m²
- kupatilo 4,7 m²
- ostava 2,6 m²
- pomoćna prostorija 6 m²
- garaža 19,2 m²
Ukupno: 96,7 m²
Potkrovlje
- hodnik 6,6 m²
- soba 13,2 m²
- soba 12,7 m²
- soba 12,8 m²
- garderoba 4,7 m²
- kupatilo 5 m²
- tavan 13,4 m²
Ukupno: 68,4 m²
Cijena
- oko 75 000 EUR
Pogledajte galeriju:














