Plan
Prizemlje
- ulaz 3,37 m²
- hodnik 9,36 m²
- ostava 1,6 m²
- kuhinja 9,61 m²
- dnevni boravak + trpezarija 42,09 m²
- wc 2 m²
- pomoćna prostorija 6,39 m²
- kotlovnica 6,28 m²
- garaža 20,02 m²
Ukupno: 100,72 m²
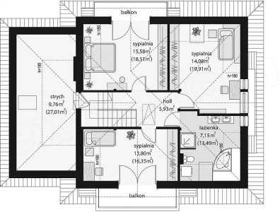
Potkrovlje
- tavan 9,76 m² (27,01 m²)
- soba 15,58 m² (18,51 m²)
- hodnik 5,93 m²
- soba 13,8 m² (16,35 m²)
- kupatilo 7,15 m² (13,49 m²)
Ukupno: 52,22 m² (81,29 m²)
Cijena
- oko 65 000 EUR
Pogledajte galeriju:













