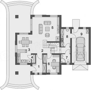
Plan
Prizemlje
- ulaz 6,82 m²
- hodnik 10,63 m²
- kuhinja + trpezarija 15,65 m²
- ostava 1,12 m²
- dnevni boravak 25,7 m²
- soba 9,74 m²
- kupatilo 3,11 m²
- pomoćna prostorija 6,27 m²
- garaža 21,64 m²
Ukupno: 100,68 m²
Potkrovlje
- hodnik 6,22 m² (6,34 m²)
- soba 13,53 m² (18,57 m²)
- garderoba 2,8 m² (6,59 m²)
- kupatilo 8,94 m² (9,84 m²)
- soba 13,68 m² (19,89 m²)
- soba 13,29 m² (19,34 m²)
- tavan 15,87 m² (35,25 m²)
Ukupno: 74,33 m² (115,82 m²)
Cijena
- oko 75 000 EUR
Pogledajte galeriju:











