Plan
Prizemlje
- ulaz 2,9 m²
- hodnik 7 m²
- kuhinja + ostava 11,4 m²
- dnevni boravak 28,1 m²
- soba 12,4 m²
- stepenice 1,6 m²
- hodnik 2,5 m²
- kupatilo 4,5 m²
- kotlovnica 8,6 m²
- garaža 21,4 m²
Ukupno: 100,4 m²
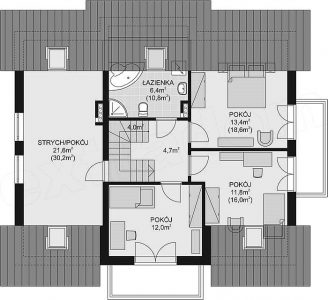
Potkrovlje
- hodnik 4,7 m²
- soba 12 m²
- soba 11,8 m² (16 m²)
- soba 13,4 m² (18,6 m²)
- kupatilo 6,4 m² (10,8 m²)
- tavan 21,6 m² (30,2 m²)
- stepenice 4 m²
Ukupno: 73,9 m² (96,3 m²)
Cijena
- oko 80 000 EUR
Pogledajte galeriju:








