Plan
Prizemlje – 183,77 m²
- ulaz 6,32 m²
- garderoba 2,21 m²
- kotlovnica 4,61 m²
- garaža 33,88 m²
- dnevni boravak 39,93 m²
- kuhinja 13,81 m²
- ostava 1,42 m²
- wc 1,75 m²
- hodnik 19,71 m²
- soba 12,97 m²
- kupatilo 5,76 m²
- soba 12,98 m²
- garderoba 6,24 m²
- soba 15,69 m²
- kupatilo 6,49 m²
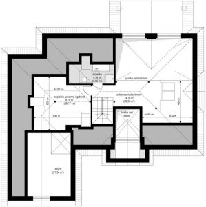
Potkrovlje – 50,22 m²
- mezanin 14,76 m² (28,68 m²)
- kupatilo 4,34 m² (8,65 m²)
- soba 9,78 m² (38,17 m²)
- tavan 21,34 m²
Pogledajte galeriju:








