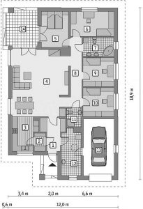
Plan
Prizemlje
- ulaz 7,2 m²
- ostava 2,4 m²
- kuhinja 9,4 m²
- dnevni boravak + trpezarija 42,8 m²
- soba 11,5 m²
- soba 12,8 m²
- kupatilo 7 m²
- hodnik 10,5 m²
- soba 10,7 m²
- soba 10,7 m²
- kupatilo 3,2 m²
- kotlovnica 10,2 m²
- garaža 20,6 m²
Ukupno: 159 m²
Cijena
- oko 75 000 EUR
Pogledajte galeriju:









