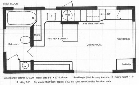
Chris Heininge je kreator ove male kuće od 26 kvadratnih metara prostora. On je umjetnik i dizajner koji mnogo pažnje posvećuje porodici. Od svoje 17. godine je dugo živio u Japanu i tamo je naučio posebno umijeće življenja na malenom prostoru. To znanje je primijenio da napravi ovu prekrasnu kuću.
Ovako izgleda…
Pogledajte galeriju:












