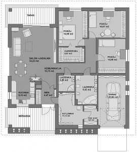
Plan
Prizemlje
- ulaz 4,47 m²
- hodnik 15,75 m²
- dnevni boravak + trpezarija 32,23 m²
- kuhinja 8,1 m²
- soba 14,68 m²
- garderoba 5,61 m²
- soba 14,67 m²
- soba 14,08 m²
- kupatilo 9,03 m²
- kupatilo 3,86 m²
- kotlovnica 10,13 m²
- pomoćna prostorija 3,81 m²
- garaža 20,84 m²
Ukupno: 157,26 m²
Cijena
- oko 80 000 EUR
Pogledajte galeriju:







