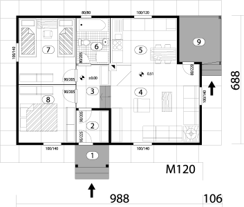
Tehničke karakteristike
- Kvadratura(bruto) : 75 m2
- Kvadratura(neto) : 68 m2
- Broj soba : 2
Pregled prostorija
- Ulaz 3.95 m2
- Vetrobran 3.06 m2
- Predsoblje 3.85 m2
- Dnevna soba 19.32 m2
- Kuhinja 8.4 m2
- Kupatilo 4.08 m2
- Dečija soba 10.5 m2
- Spavaća soba 9 m2
- Terasa 6.16 m2
Izvor: montaznekucedomtera.rs


