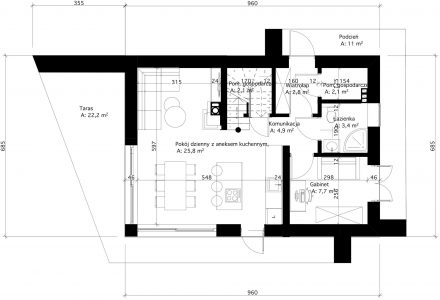
Plan
Prizemlje – 48,80 m²
- ulaz 2,80 m²
- pomoćna prostorija 2,10 m²
- kupatilo 3,40 m²
- hodnik 4,90 m²
- soba 7,70 m²
- dnevna soba + trpezarija + kuhinja 25,80 m²
- pomoćna prostorija 2,10 m²
- terasa (22,20 m²)
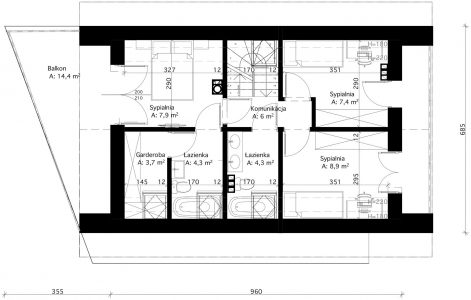
Potkrovlje – 42,50 m²
- hodnik 6 m²
- soba 7,90 m²
- soba 7,40 m²
- soba 8,90 m²
- kupatilo 4,30 m²
- kupatilo 4,30 m²
- garderoba 3,70 m²
- terasa (14,40 m²)
Pogledajte galeriju:









