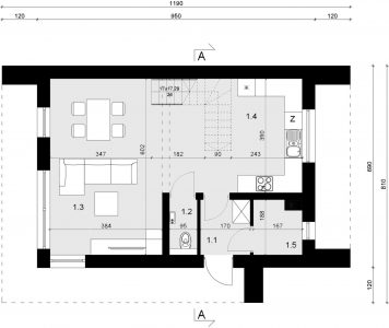
Plan
Prizemlje – 46,04 m²
- ulaz 3,09 m²
- wc 1,70 m²
- dnevni boravak 29,36 m² (32,01 m²)
- kuhinja 9,35 m²
- kotlovnica 2,54 m²
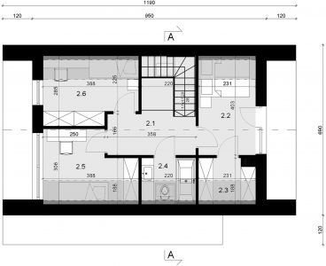
Potkrovlje – 35,39 m²
- hodnik 6,11 m²
- soba 7,81 m² (9,12 m²)
- garderoba 2,76 m² (4 m²)
- kupatilo 2,83 m² (4,01 m²)
- soba 7,93 m² (10,01 m²)
- soba 7,95 m² (9,95 m²)
Pogledajte galeriju:






