Plan
Prizemlje
- Ulaz 4,2 m²
- Kuhinja 8,4 m²
- Dnevni boravak + trpezarija 38,2 m²
- Soba 9,2 m²
- Kupatilo 2,5 m²
- Kotlovnica 5,4 m²
- Pomoćna prostorija 4,5 m²
- Garaža 18,6 m²
Ukupno: 91 m²
Potkrovlje
- Hodnik 7,7 m²
- Soba 12,5 m² (14,2 m²)
- Soba 12,4 m² (16,3 m²)
- Kupatilo 5,8 m²
- Kupatilo 5,9 m²
- Garderoba 4,3 m² (7,9 m²)
- Soba 15,2 m² (16,9 m²)
- Soba 17,7 m² (24,3 m²)
Ukupno: 81,5 m² (99 m²)
Cijena
- oko 75 000 EUR
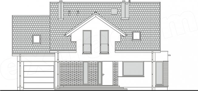
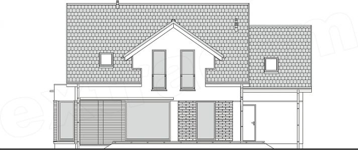
Pogledajte galeriju:












