Plan
Prizemlje
- ulaz 3,11 m²
- hodnik 13,69 m²
- ostava 1,67 m²
- kuhinja 8,72 m²
- dnevni boravak 34,62 m²
- soba 10,4 m²
- soba 8,38 m²
- kupatilo 2,73 m²
- kotlovnica 6,52 m²
- garaža 19,31 m²
Ukupno: 109,15 m²
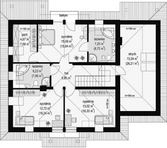
Potkrovlje
- garderoba 4,67 m² (7,68 m²)
- soba 15,09 m² (15,84 m²)
- kupatilo 6,23 m² (7,56 m²)
- soba 12,72 m² (16,24 m²)
- kupatilo 7,25 m² (8,72 m²)
- hodnik 6,85 m²
- soba 13,02 m² (16,33 m²)
- tavan 13,24 m² (26,21 m²)
Ukupno: 79,07 m² (105,43 m²)
Cijena
- oko 85 000 EUR
Pogledajte galeriju:








