Plan
Prizemlje
- ulaz 2,3 m²
- hodnik 8 m²
- ostava 1,2 m²
- kuhinja + trpezarija 17,8 m²
- dnevni boravak 27,7 m²
- soba 12,6 m²
- garderoba 3,7 m²
- kupatilo 3,2 m²
- pomoćna prostorija 4,3 m²
Ukupno: 80,8 m²
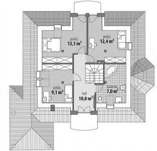
Potkrovlje
- hodnik 10 m²
- soba 9,1 m²
- soba 13,1 m²
- soba 12,4 m²
- kupatilo 7 m²
Ukupno: 51,6 m²
Cijena
- oko 65 000 EUR
Pogledajte galeriju:









