Plan
Prizemlje
- ulaz 4,9 m²
- kuhinja 11,3 m²
- ostava 2,9 m²
- dnevni boravak 31,9 m²
- hodnik 8,8 m²
- wc 4,4 m²
- hodnik 2,1 m²
- soba 12,4 m²
- kotlovnica 10,4 m²
- garaža 19,5 m²
Ukupno: 108,6 m²
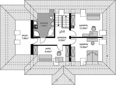
Potkrovlje
- hodnik 9,2 m²
- soba 8,4 m²
- soba 12,6 m²
- soba 12,4 m²
- kupatilo 7,6 m²
- tavan 7,8 m²
Ukupno: 58 m²
Cijena
- oko 75 000 EUR
Pogledajte galeriju:










