Plan
Prizemlje
- ulaz 3,4 m²
- hodnik 8 m²
- kuhinja 9,7 m²
- ostava 0,5 m²
- dnevni boravak + trpezarija 27 m²
- kupatilo 4,3 m²
- hodnik 1,6 m²
- soba 11 m²
- kotlovnica 7,7 m²
- garaža 18,2 m²
Ukupno: 91,4 m²
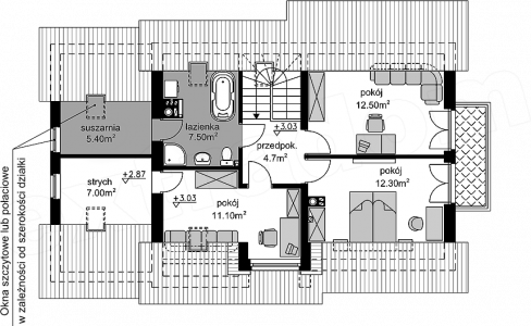
Potkrovlje
- hodnik 4,7 m²
- soba 12,3 m²
- soba 12,5 m²
- soba 11,1 m²
- tavan 7 m²
- pomoćna prostorija 5,4 m²
- kupatilo 7,5 m²
Ukupno: 60,5 m²
Cijena
- oko 55000 EUR
Pogledajte galeriju:












