Površina:
- 159,77 m²
Prizemlje
- Ulaz 5,1 m²
- Garderoba 3 m²
- Kotlovnica 3,8 m²
- Soba 7,5 m²
- Hodnik 11,1 m²
- Dnevni boravak 26,5 m²
- Trpezarija 16,2 m²
- Kuhinja 12,4 m²
- Kupatila 3,8 m²
- Ostava 1,7 m²
- Garaža 21,8 m²
- Terasa 49,8 m²
Ukupno 112,9 m²
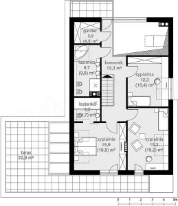
Potkrovlje
- Soba 15,9 m² (18,9 m²)
- Kupatilo 3,2 m² (4,7 m²)
- Kupatilo 6,7 m² (9,9 m²)
- Garderoba 2,9 m² (4,3 m²)
- Hodnik 12,3 m²
- Soba 12,3 m² (15,4 m²)
- Soba 15,3 m² (19,2 m²)
- Terasa 22,9 m²
Ukupno: 68,6 m² (84,7 m²)
Pogledajte galeriju:


















