Plan
Prizemlje
- Ulaz 3,1 m²
- Hodnik 12,53 m²
- Kuhinja 7,11 m²
- Ostava 1,12 m²
- Trpezarija 9,49 m²
- Dnevni boravak 27,02 m²
- Soba 7,58 m²
- Kupatilo 2,72 m²
- Kotlovnica 11,93 m²
- Garaža 20,34 m²
Ukupno: 102,94 m²
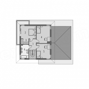
Sprat
- Hodnik 5,61 m²
- Soba 13,84 m²
- Garderoba 2,75 m²
- Soba 16,8 m²
- Soba 13,25 m²
- Kupatilo 7,45 m²
Ukupno: 59,7 m²
Cijena
- oko 70 hiljada evra
Pogledajte galeriju:










