Plan
Podrum
- Hodnik 3.89 m²
- Kotlovnica 10,17 m²
- Soba 32,26 m²
- Kuhinja 10,67 m²
- Pomoćna prostorija 7,19 m²
Ukupno: 64,18 m²
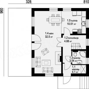
Prizemlje
- Ulaz 4,1 m²
- Hodnik 4.88 m²
- Kupatilo 3,54 m²
- Dnevni boravak 32,5 m²
- Kuhinja 10.51 m²
Ukupno: 55,53 m²
Potkrovlje
- Hodnik 2.4 m² (6.6 m²)
- Kupatilo 6,54 m² (10,46 m²)
- Soba 12,59 m² (16,4 m²)
- Soba 12,75 m² (16.53 m²)
- Soba 6.9 m² (10.74 m²)
Ukupno: 41,18 m² (60,73 m²)
Cijena
- oko 40 hiljada evra
Pogledajte galeriju:










