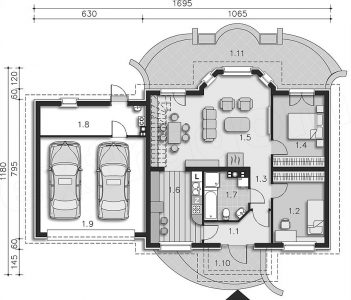
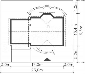
Plan
Prizemlje
- ulaz 5,55 m²
- soba 11,94 m²
- hodnik 2,73 m²
- soba 11,95 m²
- dnevni boravak 32,27 m²
- kuhinja 12,11 m²
- kupatilo 6,53 m²
- kotlovnica 9,91 m²
- garaža 32,45 m²
- podest 7,57 m²
- terasa 22,59 m²
Ukupno: 125,44 m²
Cijena
- oko 63 000 EUR
Pogledajte galeriju:








