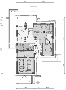
Plan
Prizemlje
- ulaz 4,32 m²
- hodnik + stepenice 14,4 m²
- kuhinja 11 m²
- ostava 2,34 m²
- dnevni boravak 34,08 m²
- wc 1,54 m²
- hodnik 6,24 m²
- soba 15,19 m²
- soba 10,49 m²
- soba 9,22 m²
- kupatilo 7,57 m²
- kotlovnica 11,19 m²
- garaža 31,75 m²
Ukupno: 159,33 m²
Potkrovlje
- tavan 50,2 m²
Ukupno: 50,2 m²
Cijena
- oko 75 000 EUR
Pogledajte galeriju:














