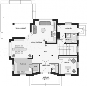
Površina
- 181,11 m²
Prizemlje
- Ulaz 3,47 m²
- Hodnik 21,29 m²
- Kuhinja 10,82 m²
- Ostava 2,26 m²
- Dnevna soba + trpezarija 41,2 m²
- Kotlovnica 6,16 m²
- Kupatilo 3,96 m²
- Prolaz 2,23 m²
- Soba 12,5 m²
- Garderoba 2,26 m²
Sprat
- Hodnik 11,33 m²
- Soba 17,76 m² (18,18 m²)
- Garderoba 6,98 m² (13,23 m²)
- Kupatilo 13,38 m² (21,72 m²)
- Soba 13,37 m² (15,51 m²)
- Garderoba 2,45 m² (6,78 m²)
- Soba 13,37 m² (15,5 m²)
- Garderoba 2,45 m² (6,78 m²)
Pogledajte galeriju:












