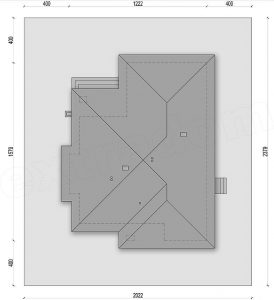
Plan
- Ulaz 3,68 m²
- Hodnik 7,77 m²
- Dnevni boravak 26,76 m²
- Kuhinja 9,93 m²
- Ostava 2,08 m²
- WC 1,89 m²
- Kupatilo 5,32 m²
- Hodnik 4,29 m²
- Soba 14,16 m²
- Soba 15,5 m²
- Garderoba 2,23 m²
- Pomoćna prostorija 12,11 m²
- Soba 14,25 m²
Ukupno: 119,97 m²
Cijena
- oko 60 hiljada evra
Pogledajte galeriju:









