Plan
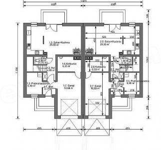
Prizemlje
- Ulaz 3.17 m²
- Pomoćna prostorija 6.4 m²
- Hodnik 4,59 m²
- WC 1,08 m² (1,75 m²)
- Dnevni boravak + kuhinja 29.55 m²
- Kotlovnica 6,33 m²
- Garaža 19,58 m²
Ukupno: 70,7 m² (71,37 m²)
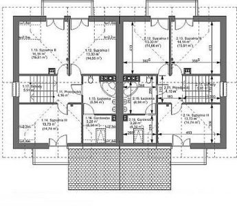
Potkrovlje
- Hodnik 4.16 m²
- Soba 13,3 m² (14,66 m²)
- Soba 14,14 m² (15.51 m²)
- Soba 13,73 m² (14,74 m²)
- Kupatilo 6.94 m²
- Garderoba 3,28 m² (5,34 m²)
Ukupno: 55,55 m² (61,35 m²)
Cijena
- oko 50 hiljada evra
Pogledajte galeriju:







