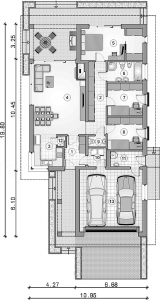
Plan
Prizemlje
- ulaz 5,3 m²
- hodnik 9,05 m²
- kuhinja 7,2 m²
- dnevni boravak + trpezarija 33,85 m²
- soba + garderoba 16,65 m²
- kupatilo 6 m²
- soba 9,9 m²
- soba 9,9 m²
- wc 1,6 m²
- pomoćna prostorija 2,8 m²
- kotlovnica 4,2 m²
- ostava 0,6 m²
- garaža 34,05 m²
Ukupno: 141,1 m²
Cijena
- oko 70 000 EUR
Pogledajte galeriju:








