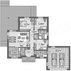
Plan
Prizemlje
- Ulaz 5,7 m²
- Ostava 2,58 m²
- Kuhinja 10 m²
- Dnevni boravak + trpezarija 27,84 m²
- Soba 15,27 m²
- Soba 12,46 m²
- Hodnik 7,53 m²
- Kupatilo 6,44 m²
- WC 1,72 m²
- Soba 11,78 m²
- Kotlovnica 6,75 m²
- Garaža 38,4 m²
Ukupno: 146,47 m²
Potkrovlje
- Tavan 33,5 m²
Ukupno: 33,5 m²
Cijena
- oko 55 hiljada evra
Pogledajte galeriju:









