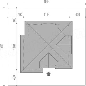
Plan
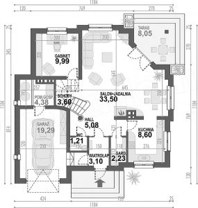
Prizemlje
- Ulaz 3,1 m²
- Hodnik 5,08 m²
- WC 1,21 m²
- Kuhinja 8,6 m²
- Garderoba 2,23 m²
- Dnevni boravak + trpezarija 33,5 m²
- Soba 9,99 m²
- Stepenice 3,6 m²
- Kotlovnica 4,38 m²
- Garaža 19,29 m²
- Terasa 8,05 m²
Ukupno: 90,98 m²
Potkrovlje
- Hodnik 6,09 m²
- Kupatilo 7,29 m² (11,56 m²)
- Soba 11,62 m² (18,48 m²)
- Soba 14,17 m²
- Soba 15,97 m² (20,16 m²)
- Garderoba 2,93 m² (6,21 m²)
- Kupatilo 5,15 m² (7,98 m²)
Ukupno: 63,22 m² (84,65 m²)
Cijena
- oko 72 hiljade evra
Pogledajte galeriju:









