Plan
Prizemlje
- Ulaz 2,3 m²
 - Hodnik 8 m²
 - Ostava 1,2 m²
 - Kuhinja + trpezarija 17,8 m²
 - Dnevni boravak 27,7 m²
 - Soba 12,6 m²
 - Garderoba 3,7 m²
 - Kupatilo 3,2 m²
 - Pomoćna prostorija 4,3 m²
 
Ukupno: 80,8 m²
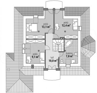
Potkrovlje
- Hodnik 10 m²
 - Soba 9,1 m²
 - Soba 13,1 m²
 - Soba 12,4 m²
 - Kupatilo 7 m²
 
Ukupno: 51,6 m²
Cijena
- oko 55 hiljada evra
 
Pogledajte galeriju:
    








