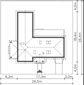
Plan
Iskoristiva povšina
- 177.2 m²
Prizemlje
- Ulaz 5.6 m²
- Hodnik 14.7 m²
- WC 2.8 m²
- Dnevni boravak 33.2 m²
- Kupatilo 7.3 m²
- Hodnik 9.3 m²
- Soba 10.4 m²
- Soba 10.4 m²
- Soba 17.4 m²
- Kuhinja + trpezarija 22.8 m²
- Ostava 2.6 m²
- Pomoćna prostorija 4.3 m²
- Garaža 18.6 m²
- Podest 7.1 m²
- Terasa 16.6 m²
- Terasa 29.3 m²
Ukupno: 159.39 m²
Potkrovlje
- Hodnik 5.6 m²
- Međusprat 7.8 m²
- Kupatilo 3.8 m²
- Soba 11.2 m²
- Garderoba 3.8 m²
- Stepenice 4.2 m²
Ukupno: 36.40 m²
Cijena
- oko 80 hiljada evra
Pogledajte galeriju:










