Plan
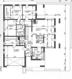
Prizemlje
- Ulaz 4,69 m²
- Kuhinja 10,88 m²
- Dnevni boravak + trpezarija 40,81 m²
- Ostava 2,49 m²
- Hodnik 24,58 m² (26,97 m²)
- Soba 14,94 m²
- Soba 13,98 m²
- Garderoba 6,49 m²
- Soba 16,54 m²
- Kupatilo 7,97 m²
- Kupatilo 3,54 m²
- Pomoćna prostorija 10,66 m²
- Garaža 35,64 m²
Ukupno: 193,21 m² (195,6 m²)
Potkrovlje
- Međusprat 29,66 m² (43,18 m²)
Cijena
- oko 65 hiljada evra
Pogledajte galeriju:











